Ce modèle vous est présenté avec un nombre standard de menuiseries.
Vous pouvez apporter des modifications à nos plans pour les adapter à vos besoins et à l'orientation de votre maison.
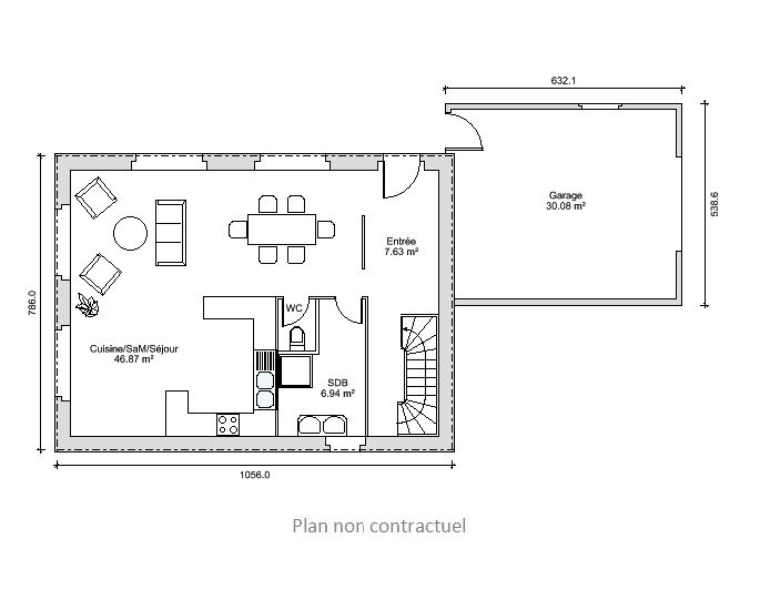
Distribution des pièces :
RDC : entrée, grande cuisine/salon/salle à manger, salle de bain, WC.
Etage : 3 chambres, salle de bain.